무엇을 찾고 계신가요?
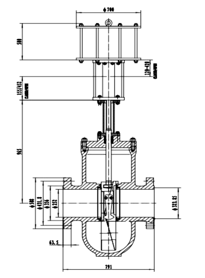
특정 고객 요구 사항에 대응하여 GEKO Valves & Controls는 맞춤형 솔루션인 10인치를 성공적으로 설계하고 제공했습니다. 더블 도어 제어 밸브 원유 운송용 파이프에 적합합니다. 이 맞춤형 밸브 솔루션은 소중한 고객으로부터 폭넓은 인정과 호평을 받고 있습니다.

정밀 엔지니어링: GEKO는 광범위한 전문 지식을 활용하여 10인치를 엔지니어링했습니다. 더블 도어 제어 밸브 정밀성을 바탕으로 원유 운송에 있어 최적의 제어와 성능을 보장합니다.
이중 도어 설계: 이중 도어 설계를 통해 밸브의 원유 유량 조절 효율이 향상됩니다. 이 기능은 운송 과정의 변동에 대한 제어력과 대응력을 향상시킵니다.
재료 선택: GEKO의 품질에 대한 헌신은 엄격한 원유 운송 환경에서 내구성과 신뢰성을 보장하는 신중한 재료 선택에 반영됩니다.
맞춤형 10인치 더블 도어 제어 밸브 엄격한 테스트와 평가를 거쳤으며, 고객은 솔루션에 대한 완전한 만족을 표했습니다. 이 밸브는 해상 파이프라인을 통한 원유 흐름을 조절하는 데 탁월한 성능을 입증했습니다.
최적화된 원유 흐름: 맞춤형 솔루션을 통해 고객의 원유 운송 프로세스가 최적화되고, 원유 흐름이 정밀하게 제어되어 운영 효율성이 향상됩니다.
신뢰할 수 있는 성능: GEKO의 정밀 엔지니어링과 고품질 소재에 대한 헌신은 안정적이고 일관된 밸브 성능으로 이어져 가동 중지 시간과 유지 관리 요구 사항을 최소화합니다.
향상된 제어: 밸브의 이중 도어 디자인은 고객에게 향상된 제어 기능을 제공하여 원유 운송 프로세스를 보다 효과적으로 관리할 수 있게 해줍니다.
GEKO 밸브 및 컨트롤 10인치 더블 도어 컨트롤 밸브에 대한 맞춤형 솔루션 제공 성공은 고객 기대를 충족하고 뛰어넘기 위한 GEKO의 헌신을 보여줍니다. 고객사의 승인은 맞춤형 접근 방식의 효과를 입증하며, GEKO가 까다로운 환경에서 특수 밸브 솔루션을 제공하는 신뢰할 수 있는 파트너임을 입증합니다. 원유 운송 분야. 문의: info@geko-union.com